click images to slide show

ⓒ홍석규
그리드 어반 | Grid Urban / 서초동 근린생활시설 리모델링
동네가 가지는 색과 이웃한 건축들의 형태는 기존 건축물이 제자리를 지켜야 하는 리모델링 프로젝트에서 더욱 중요시되는 가치들이다. 우리는 리모델링 프로젝트의 공공성과 매력을 이야기 할 때 항상 건축적 오브제 성취가 아닌 주변으로부터 비롯된 건축이어야 함을 강조해 왔는데, 이 또한 건축물이 도시공간에 새긴 발자국을 유지한 채 옷을 갈아입고 새로운 생명을 부여받는 리모델링 프로젝트의 숙명이라 믿기 때문이다.
서울 서초동의 노후 근린생활시설을 새단장하는 그리드 어반(Grid Urban) 프로젝트에서도 우리는 ‘주변 지향’을 통한 건축적 성과에 집중하였다. 동네를 바라보며 건축의 형태와 조형의 규칙을, 이웃 건축물들을 관찰하며 재료의 배색과 질감의 아이디어를 얻었다. 그리고 비로소 우리의 건축에 이르러 내부공간의 합리성과 근린생활시설로의 편의성, 구조적 안정성과 서비스 효율성까지 충분히 고민하며 또 하나의 리모델링 프로젝트를 완성해 냈다. Before and After의 변신과 그 간극이 주는 시각적 자극보다 원래 자리했던 장소의 성질과 원래 그러했던 건축물의 특징들에서 변화의 근거를 찾아내는 과정이 무겁게 다가옴은 리모델링 프로젝트가 ‘낯선 새 이웃의 등장’보다 ‘반가웃 이웃 사촌의 귀환’이 되길 바라는 바람이자 리모델링 프로젝트를 대하는 우리의 태도이기도 하다.

동네의 색과 드러냄의 방법
프로젝트의 대지는 서초동 법조타운 인근이었다. 모서리가 전제된 코너부지 위에 대지의 형태 그대로 형성된 단정한 볼륨, 묵직한 석재 마감 위 무거운 간판들을 메고 무심하게 서 있는 모습으로 우리를 맞았다. 한 바퀴 돌아본 동네는 법조타운 이면도시 특유의 검박한 무채색, 차갑지만 무난한 화강석과 회반죽의 질감, 비슷한 볼륨과 프로그램들로 의식적 동질감을 형성하려 한 듯한 묘한 고요함을 전해주었다. 법률사무소, 학원가와 먹자골목이 뒤섞인 다채로운 도시였지만 존재감 만큼은 도드라지지 않아야 한다는 뉘앙스를 풍기는 회색도시에서, 오랜 시간 자리를 지켜온 건축물을 고쳐내기 위한 주제의 탐색 또한 신중할 수 밖에 없었다.
클라이언트는 기존 건축물의 불합리한 수직동선, 열악한 주차공간, 무엇보다 불법으로 증축되어 구조적 안정성이 확보되지 않은 상부층의 재구성 등 건축물의 전반적인 기능을 개선하고자 하였다. 특히 주변 맥락에 맞는 임대환경을 조성하고자, 건축물 전체가 하나의 언어로 디자인 되어 호실 단위 뿐 아니라 건축물 전체의 통합임대까지 가능한 일관된 디자인을 원했다. 클라이언트의 이러한 희망을 동네의 색 위에 덧칠 해 내기 위한 건축적 솔루션은 의외로 간단하고 명료하게 정리되었는데, ‘순응하는 드러냄’의 개념이었다. 기존 건축물의 매스를 계승하고 동네의 담담한 무채색을 연장하되, 톤 업(tone up)과 디테일을 통해 ‘이웃의 귀환’을 알리고 동선과 서비스의 정리를 통해 ‘문턱 낮은 이웃’으로 거듭나는 전략, 튀지 않지만 주목받는, 그대로인 듯 싹 바뀐 리모델링을 해 보기로 한 것이다.






이웃 건축의 형태와 그리드
전체적인 인상은 동네의 색과 이웃 건축의 형태로부터 온 ‘순응’의 컨셉과 그 와중 다양한 방법으로 ‘드러내는’ 존재감이 공존하길 기대했다. 기존 건축물의 매스 형태와 동네에서 주는 무채색의 까칠한 표정들은 사다리꼴 매스의 계승과 옥상부로의 그리드 확장을 통해 유지와 과시를, 무채색의 투톤 외단열 시스템 채택과 거친 질감의 표현을 통해 동질감과 이질감을 동시에 줌으로서 이어나갔다.
수직동선 전체 철거 및 제작계단 삽입과 승강기 신설 과정에서 수직적으로 확장된 공간은 자연스럽게 옥상공간의 프레임으로 이어지며 기존 건축물의 조형적 형태와 개구부 논리를 연장하면서도 규모면에서의 상승감을 꾀했고, 거친 회색 띠와 무난한 백색 면이 반복되는 외벽의 톤은 주변의 회색도시를 배경으로 어우러지면서도 그리드의 반복과 함께 단정한 존재감을 드러내게 하였다. 그리드는 기존 건축물의 저층부가 가졌던 스팬(span)을 상부로 그대로 연장하되 내부공간의 활용과 프라이버시를 고려하여 몇몇 구간에서는 쪼개고, 다른 구간에서는 통합하며 지루하지만은 않은 그리드가 되게 하였다.




각 그리드들은 근린생활시설로서의 개방성과 수용성을 보여주면서도 내부공간에서의 조망을 고려해 창호의 나뉨을 최소화하여 통창을 통한 주변과의 소통을 꾀했다. 다만 인접대지의 이웃 건축들이 꽤 가까이 붙어 공존하는 구도심의 특성 상, 그리드의 깔끔한 개방성으로 인한 프라이버시 간섭을 고려해 시선 교차를 적정 수준 가려주면서도 환기창의 나뉨을 스크린 할 수 있게끔 금속 루버를 적재적소에 배치해 내부공간을 보호하고 입면의 선적 요소를 최소화하여 단정한 외관을 유지할 수 있게 하였다.



기능의 회복과 건축 생애의 연장
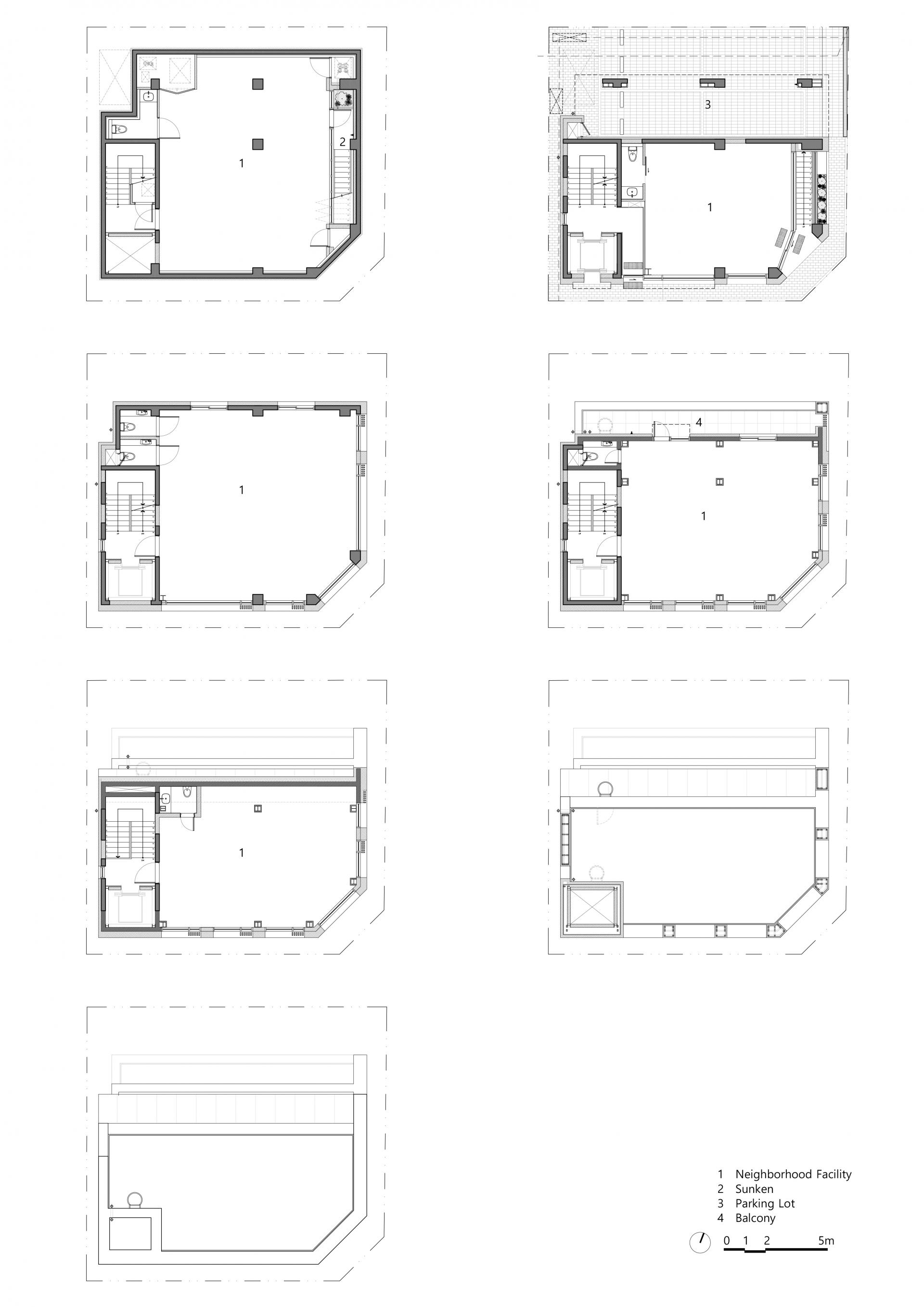
외적 요소들이 기존 도시와 건축을 연장해 나가며 시작되었다면, 건축의 내부 요소들은 새로운 근린생활시설로 거듭날 수 있도록 전면적인 개선을 진행했다. 사용성과 임대 경쟁력을 위해 승강기의 신설이 요구되었고, 기존 계단실의 구성은 승강기의 합리적인 삽입이 불가능한 공간구조를 가지고 있었다. 이에 기존 철근콘크리트계단을 전체 철거하고, 승강기와 홀, 계단실이 통합된 새로운 수직동선을 설계하여 삽입하였다. 외부에서 홀에 도달하는 동선을 간결하게 하고 상층부에 도달하는 사용자들의 직관적인 접근을 위해 통과형 승강기를 채택해 1층 외부공간에서 내부공간을 거치지 않고 직접 승강기를 활용할 수 있게 하는 한편, 화장실 등 서비스공간들은 수직동선에 인접해 컴팩트하게 배치함으로서 건축물의 서편 한켠을 압축된 공용공간으로 설정해 내부 전용공간을 최대한 확보하였다.
기존 건축물에는 지하층으로 직접 진입할 수 있는 피난계단이 설치되어 있었는데, 이를 피난계단의 역할을 넘어 보행객을 지하로 적극적으로 끌어들일 수 있는 훌륭한 외부동선으로 전환하고자 노력하였다. 1층 코너의 주출입부 한편에 노출된 외부계단을 제작 설치하고, 동선의 진행과 함께 사이니지 및 조경공간이 따라가도록 계획함으로써 코너에서 지하층으로의 직출입을 극대화 할 수 있는 장치를 마련하였다. 그 외에도 기존 건축물의 노후한 설비를 전면 정비하고, 구조보강부의 이질감을 인테리어 포인트로 삼아 하나의 톤으로 연출하고, 황폐화 되었던 부설주차장을 정비해 실질적인 활용이 가능하게끔 되살리는 등 새로운 생애를 맞이하는 건축물로서의 기능 회복에 충실하였다.








기존 도시와 기존 건축물을 기반으로 새로운 건축적 아이디어를 ‘발굴’해 가는 과정은 본디 리모델링 프로젝트가 아닌 도시공간의 모든 건축설계 프로젝트에서 중요하게 여겨져야 하는 가치일 것이다. 다만 부동산의 가치가 곧 자본의 경쟁력인 치열한 도시공간의 한복판에서, 건축의 시각적 자극은 또 다른 가치로 환산되기에 맹목적 오브제로서의 가치 매몰의 유혹은 항상 존재하기 마련이다. 리모델링 프로젝트는 이러한 유혹에서 한걸음 물러서기에 적절한 핑계, 즉 ‘기존하는 건축물’로부터 시작한다는 명분적 버팀목이 있다. 때론 이러한 전제로부터 얻을 수 있는 보수적 가치가 지속성을 가지는 현장을 목격하며, 우리사회의 현실과 리모델링 프로젝트의 가능성을 짚어보게 되는 듯 하다.




Architect : H2L
Design Team : Soyeon Jung, Yujin Lee
Location : Seocho-dong, Seocho-gu, Seoul
Client : Private
Construction : ILLO Construction
Photography : Seokkyu Hong
Project : 2023.12 - 2024.06
Built : 2024.07 - 2025.08
Type : Neighborhood Facility
Site Area : 187.90㎡
Site Coverage Area : 122.09㎡
Total Floor Area : 402.98㎡
Building Scope : B1F, 4F
Structure : RC + SS Strengthen
Finish : External Insulation System
click images to slide show
ⓒ홍석규
그리드 어반 | Grid Urban / 서초동 근린생활시설 리모델링
동네가 가지는 색과 이웃한 건축들의 형태는 기존 건축물이 제자리를 지켜야 하는 리모델링 프로젝트에서 더욱 중요시되는 가치들이다. 우리는 리모델링 프로젝트의 공공성과 매력을 이야기 할 때 항상 건축적 오브제 성취가 아닌 주변으로부터 비롯된 건축이어야 함을 강조해 왔는데, 이 또한 건축물이 도시공간에 새긴 발자국을 유지한 채 옷을 갈아입고 새로운 생명을 부여받는 리모델링 프로젝트의 숙명이라 믿기 때문이다.
서울 서초동의 노후 근린생활시설을 새단장하는 그리드 어반(Grid Urban) 프로젝트에서도 우리는 ‘주변 지향’을 통한 건축적 성과에 집중하였다. 동네를 바라보며 건축의 형태와 조형의 규칙을, 이웃 건축물들을 관찰하며 재료의 배색과 질감의 아이디어를 얻었다. 그리고 비로소 우리의 건축에 이르러 내부공간의 합리성과 근린생활시설로의 편의성, 구조적 안정성과 서비스 효율성까지 충분히 고민하며 또 하나의 리모델링 프로젝트를 완성해 냈다. Before and After의 변신과 그 간극이 주는 시각적 자극보다 원래 자리했던 장소의 성질과 원래 그러했던 건축물의 특징들에서 변화의 근거를 찾아내는 과정이 무겁게 다가옴은 리모델링 프로젝트가 ‘낯선 새 이웃의 등장’보다 ‘반가웃 이웃 사촌의 귀환’이 되길 바라는 바람이자 리모델링 프로젝트를 대하는 우리의 태도이기도 하다.
동네의 색과 드러냄의 방법
프로젝트의 대지는 서초동 법조타운 인근이었다. 모서리가 전제된 코너부지 위에 대지의 형태 그대로 형성된 단정한 볼륨, 묵직한 석재 마감 위 무거운 간판들을 메고 무심하게 서 있는 모습으로 우리를 맞았다. 한 바퀴 돌아본 동네는 법조타운 이면도시 특유의 검박한 무채색, 차갑지만 무난한 화강석과 회반죽의 질감, 비슷한 볼륨과 프로그램들로 의식적 동질감을 형성하려 한 듯한 묘한 고요함을 전해주었다. 법률사무소, 학원가와 먹자골목이 뒤섞인 다채로운 도시였지만 존재감 만큼은 도드라지지 않아야 한다는 뉘앙스를 풍기는 회색도시에서, 오랜 시간 자리를 지켜온 건축물을 고쳐내기 위한 주제의 탐색 또한 신중할 수 밖에 없었다.
클라이언트는 기존 건축물의 불합리한 수직동선, 열악한 주차공간, 무엇보다 불법으로 증축되어 구조적 안정성이 확보되지 않은 상부층의 재구성 등 건축물의 전반적인 기능을 개선하고자 하였다. 특히 주변 맥락에 맞는 임대환경을 조성하고자, 건축물 전체가 하나의 언어로 디자인 되어 호실 단위 뿐 아니라 건축물 전체의 통합임대까지 가능한 일관된 디자인을 원했다. 클라이언트의 이러한 희망을 동네의 색 위에 덧칠 해 내기 위한 건축적 솔루션은 의외로 간단하고 명료하게 정리되었는데, ‘순응하는 드러냄’의 개념이었다. 기존 건축물의 매스를 계승하고 동네의 담담한 무채색을 연장하되, 톤 업(tone up)과 디테일을 통해 ‘이웃의 귀환’을 알리고 동선과 서비스의 정리를 통해 ‘문턱 낮은 이웃’으로 거듭나는 전략, 튀지 않지만 주목받는, 그대로인 듯 싹 바뀐 리모델링을 해 보기로 한 것이다.
이웃 건축의 형태와 그리드
전체적인 인상은 동네의 색과 이웃 건축의 형태로부터 온 ‘순응’의 컨셉과 그 와중 다양한 방법으로 ‘드러내는’ 존재감이 공존하길 기대했다. 기존 건축물의 매스 형태와 동네에서 주는 무채색의 까칠한 표정들은 사다리꼴 매스의 계승과 옥상부로의 그리드 확장을 통해 유지와 과시를, 무채색의 투톤 외단열 시스템 채택과 거친 질감의 표현을 통해 동질감과 이질감을 동시에 줌으로서 이어나갔다.
수직동선 전체 철거 및 제작계단 삽입과 승강기 신설 과정에서 수직적으로 확장된 공간은 자연스럽게 옥상공간의 프레임으로 이어지며 기존 건축물의 조형적 형태와 개구부 논리를 연장하면서도 규모면에서의 상승감을 꾀했고, 거친 회색 띠와 무난한 백색 면이 반복되는 외벽의 톤은 주변의 회색도시를 배경으로 어우러지면서도 그리드의 반복과 함께 단정한 존재감을 드러내게 하였다. 그리드는 기존 건축물의 저층부가 가졌던 스팬(span)을 상부로 그대로 연장하되 내부공간의 활용과 프라이버시를 고려하여 몇몇 구간에서는 쪼개고, 다른 구간에서는 통합하며 지루하지만은 않은 그리드가 되게 하였다.
각 그리드들은 근린생활시설로서의 개방성과 수용성을 보여주면서도 내부공간에서의 조망을 고려해 창호의 나뉨을 최소화하여 통창을 통한 주변과의 소통을 꾀했다. 다만 인접대지의 이웃 건축들이 꽤 가까이 붙어 공존하는 구도심의 특성 상, 그리드의 깔끔한 개방성으로 인한 프라이버시 간섭을 고려해 시선 교차를 적정 수준 가려주면서도 환기창의 나뉨을 스크린 할 수 있게끔 금속 루버를 적재적소에 배치해 내부공간을 보호하고 입면의 선적 요소를 최소화하여 단정한 외관을 유지할 수 있게 하였다.
기능의 회복과 건축 생애의 연장
외적 요소들이 기존 도시와 건축을 연장해 나가며 시작되었다면, 건축의 내부 요소들은 새로운 근린생활시설로 거듭날 수 있도록 전면적인 개선을 진행했다. 사용성과 임대 경쟁력을 위해 승강기의 신설이 요구되었고, 기존 계단실의 구성은 승강기의 합리적인 삽입이 불가능한 공간구조를 가지고 있었다. 이에 기존 철근콘크리트계단을 전체 철거하고, 승강기와 홀, 계단실이 통합된 새로운 수직동선을 설계하여 삽입하였다. 외부에서 홀에 도달하는 동선을 간결하게 하고 상층부에 도달하는 사용자들의 직관적인 접근을 위해 통과형 승강기를 채택해 1층 외부공간에서 내부공간을 거치지 않고 직접 승강기를 활용할 수 있게 하는 한편, 화장실 등 서비스공간들은 수직동선에 인접해 컴팩트하게 배치함으로서 건축물의 서편 한켠을 압축된 공용공간으로 설정해 내부 전용공간을 최대한 확보하였다.
기존 건축물에는 지하층으로 직접 진입할 수 있는 피난계단이 설치되어 있었는데, 이를 피난계단의 역할을 넘어 보행객을 지하로 적극적으로 끌어들일 수 있는 훌륭한 외부동선으로 전환하고자 노력하였다. 1층 코너의 주출입부 한편에 노출된 외부계단을 제작 설치하고, 동선의 진행과 함께 사이니지 및 조경공간이 따라가도록 계획함으로써 코너에서 지하층으로의 직출입을 극대화 할 수 있는 장치를 마련하였다. 그 외에도 기존 건축물의 노후한 설비를 전면 정비하고, 구조보강부의 이질감을 인테리어 포인트로 삼아 하나의 톤으로 연출하고, 황폐화 되었던 부설주차장을 정비해 실질적인 활용이 가능하게끔 되살리는 등 새로운 생애를 맞이하는 건축물로서의 기능 회복에 충실하였다.
기존 도시와 기존 건축물을 기반으로 새로운 건축적 아이디어를 ‘발굴’해 가는 과정은 본디 리모델링 프로젝트가 아닌 도시공간의 모든 건축설계 프로젝트에서 중요하게 여겨져야 하는 가치일 것이다. 다만 부동산의 가치가 곧 자본의 경쟁력인 치열한 도시공간의 한복판에서, 건축의 시각적 자극은 또 다른 가치로 환산되기에 맹목적 오브제로서의 가치 매몰의 유혹은 항상 존재하기 마련이다. 리모델링 프로젝트는 이러한 유혹에서 한걸음 물러서기에 적절한 핑계, 즉 ‘기존하는 건축물’로부터 시작한다는 명분적 버팀목이 있다. 때론 이러한 전제로부터 얻을 수 있는 보수적 가치가 지속성을 가지는 현장을 목격하며, 우리사회의 현실과 리모델링 프로젝트의 가능성을 짚어보게 되는 듯 하다.
Architect : H2L
Design Team : Soyeon Jung, Yujin Lee
Location : Seocho-dong, Seocho-gu, Seoul
Client : Private
Construction : ILLO Construction
Photography : Seokkyu Hong
Project : 2023.12 - 2024.06
Built : 2024.07 - 2025.08
Type : Neighborhood Facility
Site Area : 187.90㎡
Site Coverage Area : 122.09㎡
Total Floor Area : 402.98㎡
Building Scope : B1F, 4F
Structure : RC + SS Strengthen
Finish : External Insulation System